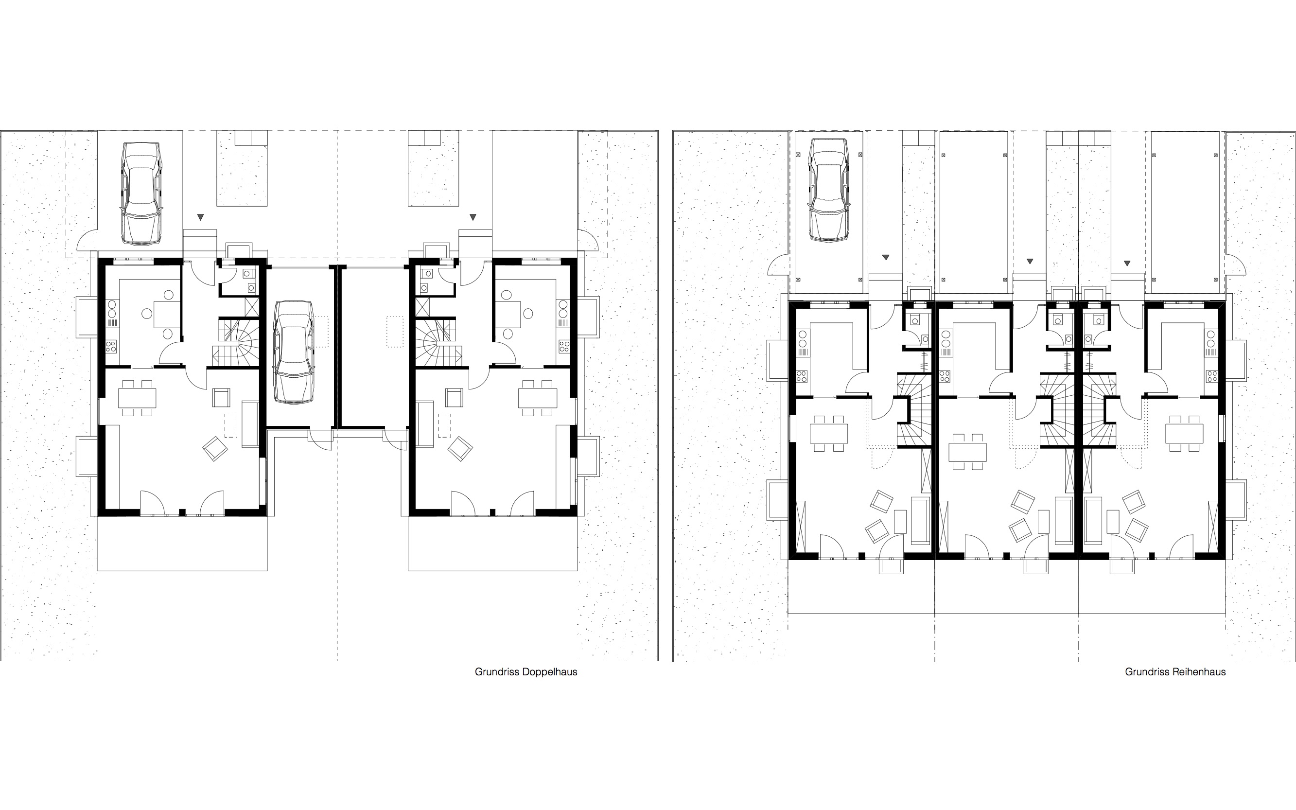
Wohnanlage (28WE)
auf der Johannishöhe Grafrath
Bauherr:
Deutsches Heim, Bob. Heimstätte
Fertigstellung:
2006
Leistungsumfang:
Loh 1-5 nach HOAI
Gesamtkosten:
ca. 8,5 Mio EURO
PDF herunterladen
auf der Johannishöhe Grafrath
Bauherr:
Deutsches Heim, Bob. Heimstätte
Fertigstellung:
2006
Leistungsumfang:
Loh 1-5 nach HOAI
Gesamtkosten:
ca. 8,5 Mio EURO
PDF herunterladen